
こんにちは^^
tanaka komuten.の栗原です。
かなり久しぶりのブログになってしまいました(汗)
急に肌寒くなり秋を感じる季節ですね!
皆さんどのようにお過ごしでしょうか?
今回のブログでは入社後3年目で初めて土地探しからお引渡しまで担当させていただいた
Sさま邸についてお話しできればいいなと思います^^
お家づくりのきっかけ
初めてモデルハウスにご来場いただいたのは今から一年ちょっと前。
僕と野本さんでご対応させていただき、ものすごく田中工務店のモデルハウスを気に入ってくださったのを今でも鮮明に覚えています。
とてもいいリアクションをしてくださるのでこちらも大変嬉しくなりました笑
Sさまは30代のご夫婦と女の子1人の3人家族。
奥様が台湾茶のお稽古をお仕事にされていて、自然豊かな場所で自宅兼アトリエを開きたいとのことでした。
Sさまご夫婦の穏やかな雰囲気もあって僕たちも和気あいあいとお話しさせていただきました^^
(お家以外のお話ばかりしていたような覚えがあります笑)
そのあと別の日には、野本さんのお家見学にご招待したり、
田中工務店恒例のお祭り「のもフェス」に来ていただいたりして田中工務店ってこういう工務店です!というのをたくさん知っていただきました。
ちょうどのもフェスに遊びに来てくださっていた豊能町在住のOBさまのお家見学に後日行かせてもらうことになり、その日に合わせてSさまに合いそうな土地を一緒に見て回る土地ツアーもすることになりました!
実は豊能町在住のOBさまとSさまは同世代で、このお家見学以来ご家族同士で仲良くなったみたいです!!
田中工務店を通じて、僕たちが思いもよらないところで、お客さまとお客さまが仲良くなるというのはとても嬉しいことです^^
いよいよ土地探しのスタート
土地ツアーでは、4つの土地をまわりました。
実際に販売されている土地に立って、その土地が持つポテンシャルとSさまの暮らしに合うかどうかをあれこれイメージしながら見てまわりました。
土地ツアーが終わりSさまと別れた後、一本のLINEが来ました。
「一番最初に見た土地がいいです!!決めます!!」

土地ツアーで一番最初にみた川西市の分譲地の土地で、南側には貸し農園がある自然豊かな場所でした。日当たりも良く抜け感も抜群。
Sさまに絶対合うだろうなあと僕も自信を持ってご提案した土地なので、その土地を即決してくださったのがとてもとても嬉しかったのです。
それとともに、ご提案したものでお客さまの人生を変えるんだという責任の重さも感じました。
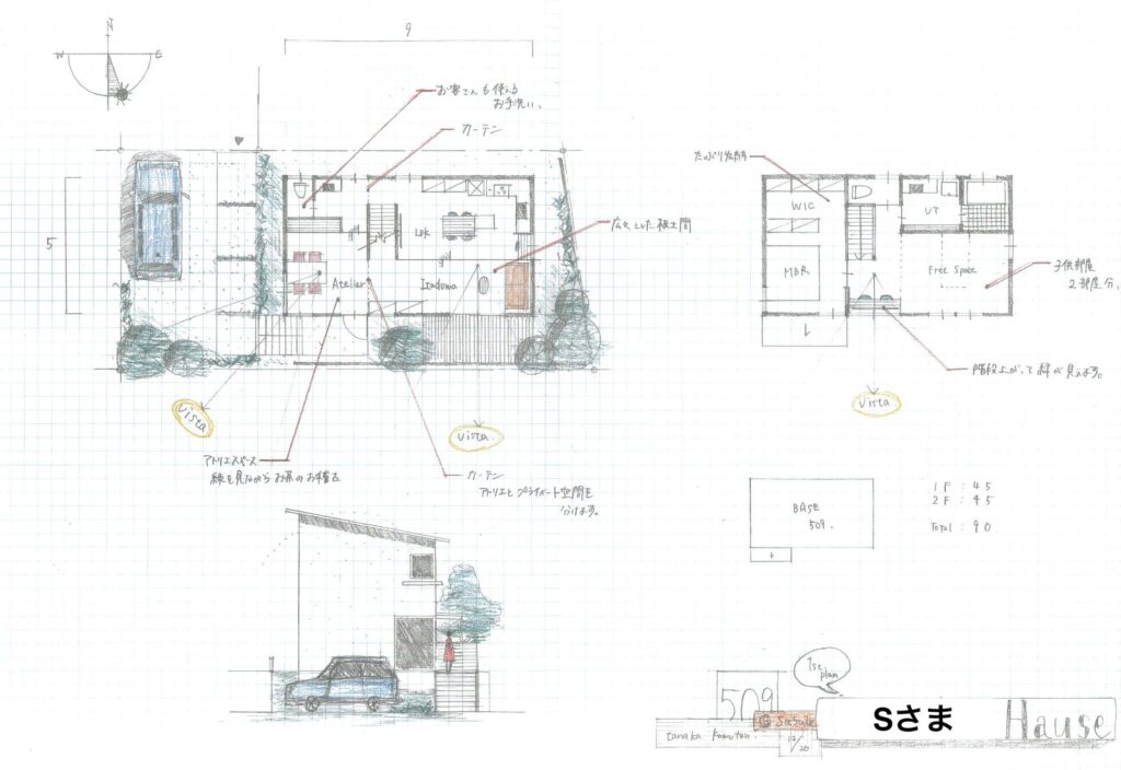
ラフプラン
早速、決断いただいた土地でラフプランをしていきます。
南側の抜けを十分にお家の中に取り入れつつ、台湾茶のアトリエと家族の居住空間の動線を意識しながらプランしました。

プランをご提案したときはものすごく喜んでくださって
「このプランがいいです!額縁に飾ります!!」とおっしゃってくれました。
頑張って書いてよかったなあと思えます^^
実際にこのラフプランからほとんどプランを変更することもなく、僕たちにお任せしてくださりました。
実際にプランしたお家の工事が始まります
楽しい打ち合わせも一瞬で終わり、いよいよ工事スタートです。
自分で考えたプランが実際に建っていくのはいつも感慨深く、まだまだ新鮮な気持ちです。


現場監督の大城戸くんと現場に向かい、大工さんや業者さんとコミュニケーションをとりながら、ときには材料を持って行ってへとへとになったり、、笑
図面で書くのは簡単だけど、実際に「つくる」というのがどれだけ難しいのか身にしみて感じました。
現場に行っても分からないことも多いですが、一つ一つ吸収していく日々になりました。
工事もあっという間に終わり、こだわりが詰まったお家が完成しました。
完成写真はこちら





いよいよお引渡です
Sさまとお会いしてから約一年。
無事にお引き渡しすることができました。
僕がご提案したものにはいいですね!といつも言ってくださり、Sさまに合いそうなものを想像しながら色々考えるのが楽しく、そしてそれがとても自分自身にとって学びになりました。
まだまだ不慣れなところもありましたが、こんな僕にお任せしてくださったSさまには感謝してもしきれません。
そんな想いを伝えたくてお手紙にしました。


小学5年生の時に実家を新築したことで建築に興味を持ち始め、身近なところから豊かな人生を届けたいと思って入社した田中工務店。
3年目にして、出会いからお引き渡しまで担当することができて、自分の夢が少し叶ったように思えました。
改めて人生で一度あるかないかのお家づくりに関われること、そしてお客さまの新しい暮らしのはじまりに寄り添えることに幸せを感じました。
この経験を大切に、これからももっと成長できるように頑張ります^^
最後に、、
今回お家づくりさせていただいたSさま。
先日、中国台湾茶・知覧茶専門店「華と薫り」をオープンされました!

自然豊かなで穏やかな空間でティーレッスンやお茶の販売をされています^^
気になる方はこちらのインスタグラムをチェックしてください!!
最後までお読みいただきありがとうございましたm(_ _)m
すべての人に、豊かな人生を。
プランナー/2023年4月入社
2001年1月8日生まれ/滋賀県栗東市出身
関西大学・環境都市工学部建築学科卒
趣味:建築・雑貨屋・カフェ巡り、ファッション、バイクでのツーリング、おいしいごはんを食べること
<プロフィール>
家づくりに興味を持ち始めたのは、小学5年生のときに実家を新築したことがきっかけでした。当時、子どもの私にも親切にしてくださった工務店のプランナーや職人さんの方々の温かな人柄が忘れられず、お客様の身近なところから家づくりを通して人生を豊かにできるプランナーになりたいと思うようになりました。そのまま10年間、自分自身の夢を曲げることなく大学へ進学後、目一杯建築を学び、晴れて2023年4月から新入社員として田中工務店に入社をしました。 田中工務店の皆さんから家づくりや暮らしのことなど、たくさんのことを日々吸収させていただき、刺激的な毎日を過ごしています。そんな田中工務店で、私の夢のひとつでもある「家づくりを通してお客様に感動を与えること、豊かな人生を創造すること」を叶え、お客様に「田中工務店を選んでよかった」と言って頂けるよう精進してまいります。 まだまだ社会人やプランナーとしての経験は浅いですが、一人前の木の家のプランナーになりたいという熱量は人一倍だと思っております。よろしくおねがいいたします。
もっと詳しく知る
ご相談・お問い合わせ
CONTACT

モデルハウスご案内 MODEL HOUSE INFO



















