
こんにちは^^
tanaka komuten.の栗原です。
かなり久々のブログになってしまいました。
2026年も3月に入り、気がつけば今年もすでに6分の1が過ぎました。皆さま、いかがお過ごしでしょうか^^
滋賀県出身の僕ですが、昨年4月に大好きな地元を離れ、入社3年目にして田中工務店のある大阪・江坂へ引っ越してきました!
(本当はもっと早くこのブログを書こうと思っていたのですが、気づけば引っ越しから1年弱が経ってしまいました汗)
毎日片道2時間弱の通勤生活も終わり、現在は田中工務店の社宅部屋で暮らしています。
今日はその社宅部屋についてお話しさせてください^^
プロジェクトのはじまり
話は2年前に遡ります。
社長の田中さんからの一言であるプロジェクトが始まりました。
それは、社宅部屋が1部屋空いたから成長のためにもマンションリノベ をしてみないか、とのことでした。
当時、新入社員の僕にそんなことをさせてもらえていいの?と思いながらも「ぜひやりたいです!!」と即返答しました(笑)
こうして、突然マンションリノベ プロジェクトが始まりました。
今回のブログでは完成までの流れを皆さんにお伝えしていきます!
早速プランニング
築50年を超える2DK(ダイニングキッチン+2部屋)の一室。
リノベ前のお部屋がこちら!!


東側の2面の窓から入る採光と抜けが特徴的なお部屋でした。
ただせっかく東側からの素晴らしい採光があるのに、壁や扉で細かく仕切られていて、「もったいないなあ」というのが第一印象でした。
どこから考えればいいかも分からないまま、とりあえずマンションリノベ特集の記事や雑誌を読み漁ります。
まずは、この部屋で一番いい場所にリビングとダイニングを配置する。というところからスタート。
部屋の間にある壁や扉を取り払い、部屋の奥まで光が届くように。そして東西に風と視線が抜けるような配置をしたい。そう思いました。
元々西側にあったキッチンの配置や寝室をどこに持ってくるか、どのようにしたらこのお部屋の良いところを最大限に活かせるか。
そうやって毎日考える時間が本当に楽しかったのを覚えています。笑
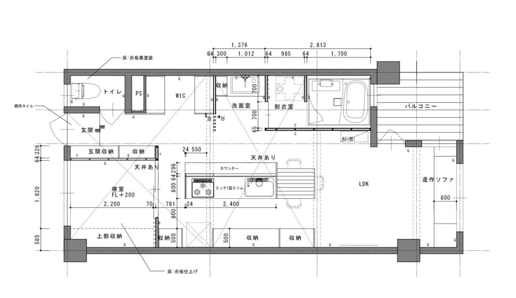
ようやくできたプランがこちら!(左:既存図面 右:リノベーション後図面)


昔ながらの細かく仕切られたアパートの間取りから一転し、大きくワンルームとした開放的なプランに変更しました。
この部屋の一番心地よい東側には造作ソファを設け、あえてキッチンを大胆に空間の中央へ配置。
東西に風と視線が抜け、玄関を入ると窓の向こうの景色が見える、そんな構図を意識しました。
解体、そして工事へ
いよいよ解体が始まります!

初めて見るマンションの解体に圧倒されながらもあっという間に空間はほぼコンクリートの状態に。

水道の配管を仕込んでいきます!


床と天井の下地を組んで、、、無垢のフローリンングも貼っていっていますね^^
毎日大工さんと話して、たくさんのことを教えてもらいながら工事が進んでいきました。
ときには天井材を自分で塗装してみたり、施工を少しお手伝いしたり、この部屋まで材料を運んだり、、、
自分で考えたものがどう形になってくのか。そしてその工程がどれだけ大変なのか。
現場で間近に見ることができたのは、本当に大きな経験でした。


工事はどんどん進み、壁の骨組みができてきて、、、





造作家具や壁の仕上げの作業に取り掛かります^^
(寝室が大工さんの休憩場になっていました。笑)
この時に一番大変だったのは、造作家具や建具(扉)などの納まり図を描くことでした。
納まり図とは部材同士がどのように取り合うかを拡大して詳しく描いた図面で、大工さんにとって迷わず施工するために必要不可欠なものです。
もちろんそんな図面も書いたことも納まりも分からない僕ですが、現場監督の佐和田さんに沢山アドバイスをいただきながら書いていきました。
いよいよ完成!!
このマンションリノベプロジェクトが始まってからは、自分の考えたものが形になっていくという過程を見るのが楽しくて毎日が刺激的でした。
仕上げにクロスを貼って壁に色を塗り、照明器具をつけて、、、
今回、井端先生がよく使っているウェッジウッドという、私たちの間で通称「井端ブルー」と呼んでいる青色の塗料を、大胆に壁一面へ塗りました。
壁に色を入れるのはなかなか勇気が入りますが、いい感じに仕上がりました!塗って良かったです。笑
刺激的な日々はあっという間に終わりいよいよ完成しました。







ベッドのすのこはちょうどこの時期にお引き渡しをさせていただいたお客様の手作りのもので、引越しをしたタイミングで使わなくなったからと譲っていただきました!
まさかのサイズがぴったりで今も大事に使わせていただいています^^
ありがとうございます!
マンションリノベを通じて
マンションリノベを通じてたくさんの学びと経験をすることができました。
もうすぐ入社して3年が経ちますが、この経験は今の自分に大いに活きていると思います。
図面で書くのは簡単でも、それを実際に形にすることは決して簡単でないこと。
家づくりは、大工さんをはじめ職人さんや業者の方々などたくさんの人が関わっているということ。
だからこそ職人さんとのコミュニケーションが何より大切ということ。
家は一人の力だけでは作ることができない。
このマンションリノベプロジェクトから改めて学べたような気がします。
そして新卒一年目の僕にこんな経験をさせてくださった田中工務店の皆さんと分からないことばっかりの僕に現場で沢山教えてくださった大工さんには感謝してもしきれません。
本当にありがとうございます。
最後までお読みいただきありがとうございました^^
すべての人に、豊かな人生を。
プランナー/2023年4月入社
2001年1月8日生まれ/滋賀県栗東市出身
関西大学・環境都市工学部建築学科卒
趣味:建築・雑貨屋・カフェ巡り、ファッション、バイクでのツーリング、おいしいごはんを食べること
<プロフィール>
家づくりに興味を持ち始めたのは、小学5年生のときに実家を新築したことがきっかけでした。当時、子どもの私にも親切にしてくださった工務店のプランナーや職人さんの方々の温かな人柄が忘れられず、お客様の身近なところから家づくりを通して人生を豊かにできるプランナーになりたいと思うようになりました。そのまま10年間、自分自身の夢を曲げることなく大学へ進学後、目一杯建築を学び、晴れて2023年4月から新入社員として田中工務店に入社をしました。 田中工務店の皆さんから家づくりや暮らしのことなど、たくさんのことを日々吸収させていただき、刺激的な毎日を過ごしています。そんな田中工務店で、私の夢のひとつでもある「家づくりを通してお客様に感動を与えること、豊かな人生を創造すること」を叶え、お客様に「田中工務店を選んでよかった」と言って頂けるよう精進してまいります。 まだまだ社会人やプランナーとしての経験は浅いですが、一人前の木の家のプランナーになりたいという熱量は人一倍だと思っております。よろしくおねがいいたします。
もっと詳しく知る
ご相談・お問い合わせ
CONTACT

モデルハウスご案内 MODEL HOUSE INFO


















